Excideuil - Maison bourgeoise et dépendances sur 3,6 hectares avec vue dégagée
Description
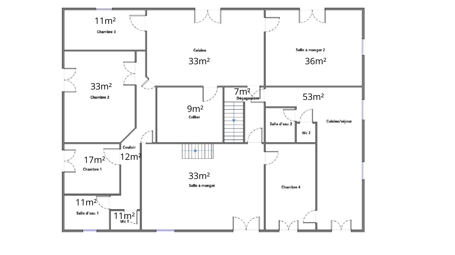
A moins de 5 mins d'Excideuil, cette maison bourgeoise du 17ème siècle de 260m² vous propose un ensemble de 8 pièces et 4 chambres de plain pied. Les pièces sont lumineuses et spacieuses, avec le style ancien traditionnel : pierres et poutres apparentes, cheminées en pierres, éviers en pierre, parquet massif en bois. Le côté fonctionnel n'est pas en reste avec un studio indépendant rénové avec cuisine, chambre, salle d'eau et son propre accès à la terrasse. Chauffage central avec pompe à chaleur air/eau, fosse septique neuve de 2010, double vitrage. Les dépendances incluent : une maison d'ami de 50m² avec 2 chambres de plain pied un hangar agricole de 250m² un pigeonnier, des étables à cochon, un atelier et des appentis une cave voutée Le terrain de 3,6 hectares est composé d'une cour et d'un jardin avec un chêne à 7 troncs, 2 mares, 2 accès indépendants à la propriété et une prairie. Situation calme en fin de hameau avec vue dégagée sur la campagne. Les informations sur les risques auxquels ce bien est exposé sont disponibles sur le site Géorisques : www.georisques.gouv.fr
- 7 Chambres
- 12 Pièces
- Surface habitable : 300 m²
- Surface terrain : 36 000 m²
- Taxes foncières : 1 250 €
- Secteur : Région EXCIDEUIL
- Environnement : Hameau / Village
- État : A rafraîchir
- Année : 1600
- Orientation : Nord Sud
- Cuisine : Indépendante
- Chauffage : Pompe chaleur
- Style : Pierre
Informations complémentaires
Situation du bien
- Hameau fin de hameau
Mi Etage
- Bureau(x) mezzanine de 12m²
Dépendances
- Appentis
- Atelier(s)
- Étable(s) à cochon
- Hangar(s) de 250m²
- Maison(s) de 52m² avec cuisine séjour, 2 chambres et salle d'eau avec douche et WC. Cave. DPE D
- Pigeonnier(s) de 9m²
Équipements divers
- Fosse(s) septique(s) pour les 2 maisons, neuve de 2010
Sous Sol
- Cave(s) voutée de 38m²
Vue
- Dégagée
- Vue sur forêt/bois
Rez de chaussée
- Appartement(s) de 53m² indépendant avec séjour cuisine, salle d'eau et WC, chambre
- Cellier(s) de 9m²
- Chambre(s) de 33, 17 et 11m² avec cheminée
- Couloir(s) de 12m²
- Cuisine(s) de 33m² avec cheminée
- Séjour(s) de 36m² avec cheminée
- Salon(s) de 33m² avec cheminée
- Salle(s) d'eau de 7m² avec douche et lavabo
- WC de 1,5m²
1er étage
- Chambre(s) de 22m²
Chauffage
- Bois 2 poêle à bois
- Pompe à chaleur air/eau
Fenêtres
- Double vitrage
Toiture
- Tuiles
- Isolation laine de roche
Services
- Ecole(s) jusqu'au lycée
- Ville la plus proche : Excideuil à moins de 5 mins
- Hôpital
- Commerces
- Calme
- Dépendance(s)
- Gîte(s)
- Golf à 10 mins
- Puits, source(s) ou citerne(s)
- Vue
- Plain-pied
Diagnostic de Performance Énergétique (DPE)


Consommation en énergie primaire :
152 kWh/m2/an
dont Émissions de gaz à effet de serre :
4 kg CO2/m2/an
PLEIN SUD l'agence Immo
2 place Doussot46200 SOUILLAC
Téléphone : 06 24 22 26 21
Voir nos honoraires